令和08年2月10日 09時37分 更新
次回更新予定日:
ファミリー・西飾磨駅物件情報
居住用物件一覧へ
トップページへ
02/10 物件更新情報
◆物件更新情報◆
HP公開数
125件
登録物件数
1737件
ご希望の物件がございましたら、お電話でもお気軽にお問い合わせください。
079-235-9507
*+★
簡単一分!希望条件登録はコチラ
★+*
藤井不動産
駅名別一覧
写真一覧
地図一覧
¥55,000
¥60,000
¥75,000
¥79,000
3DK
51.37m
2
( 15.53坪 )
4DK
74.72m
2
( 22.6坪 )
3LDK
75m
2
( 22.68坪 )
2LDK
76.01m
2
( 22.99坪 )
¥85,000
¥93,000
¥98,000
¥110,000
3LDK
81.36m
2
( 24.61坪 )
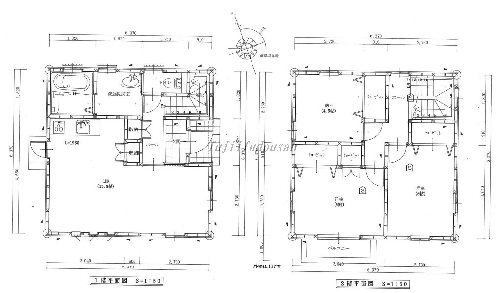
3SLDK
108m
2
( 32.67坪 )
3LDK
79.49m
2
( 24.04坪 )
4LDK
95.21m
2
( 28.8坪 )